Hjem
PROSJEKTER
NYHETER
OM OSS
MEDARBEIDERE
KONTAKT
#Bolig
#Skole
#Næring
#Reguleringsplan
#Offentlig
#Rehabilitering
#Konkurranse
Hjem
PROSJEKTER
NYHETER
OM OSS
MEDARBEIDERE
KONTAKT
#Bolig
#Skole
#Næring
#Reguleringsplan
#Offentlig
#Rehabilitering
#Konkurranse
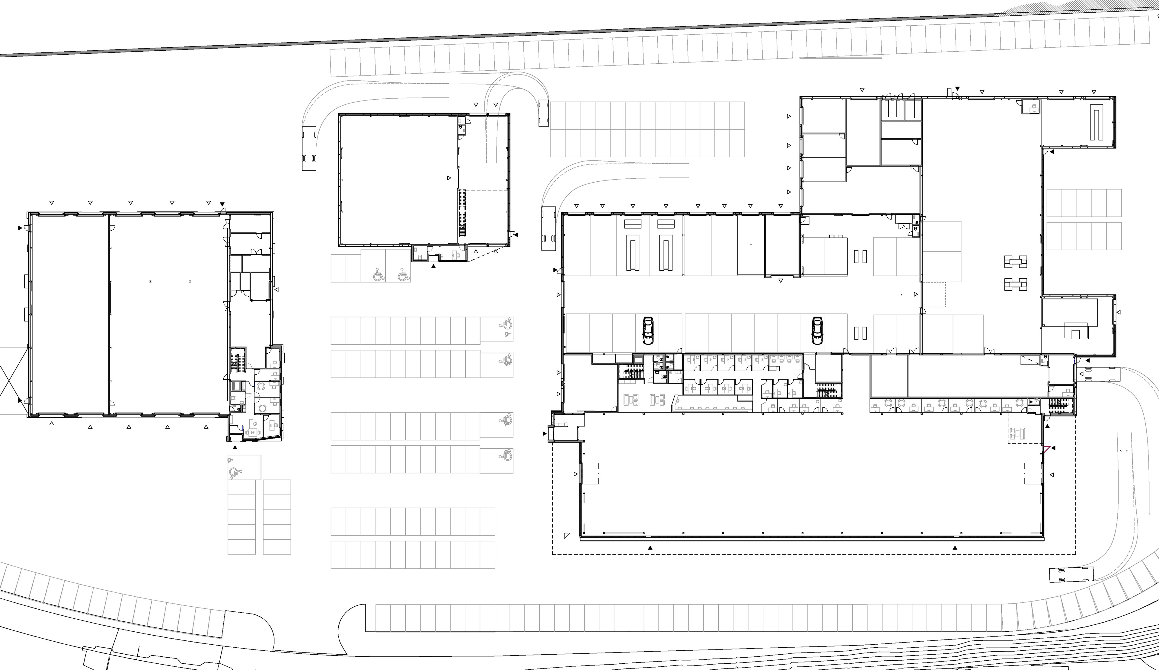
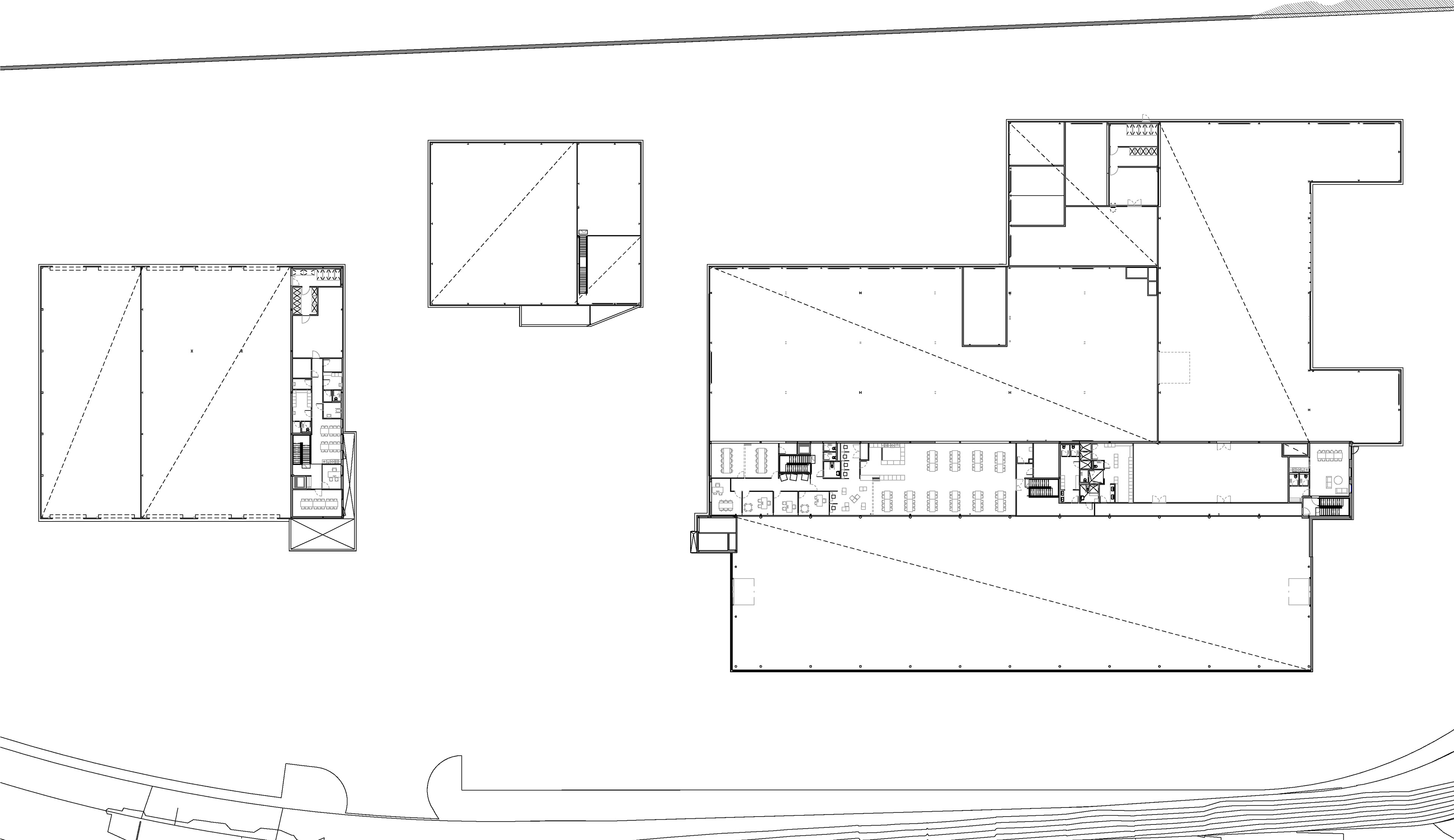
BILANLEGG PÅ DIGERNESET
Sted:
Ålesund
Gjennomføring:
2020-2023
Areal:
10000 m2
Byggherre:
Waagan Eiendom Digerneset AS
↑
Top