Hjem
PROSJEKTER
NYHETER
OM OSS
MEDARBEIDERE
KONTAKT
#Bolig
#Skole
#Næring
#Reguleringsplan
#Offentlig
#Rehabilitering
#Konkurranse
Hjem
PROSJEKTER
NYHETER
OM OSS
MEDARBEIDERE
KONTAKT
#Bolig
#Skole
#Næring
#Reguleringsplan
#Offentlig
#Rehabilitering
#Konkurranse
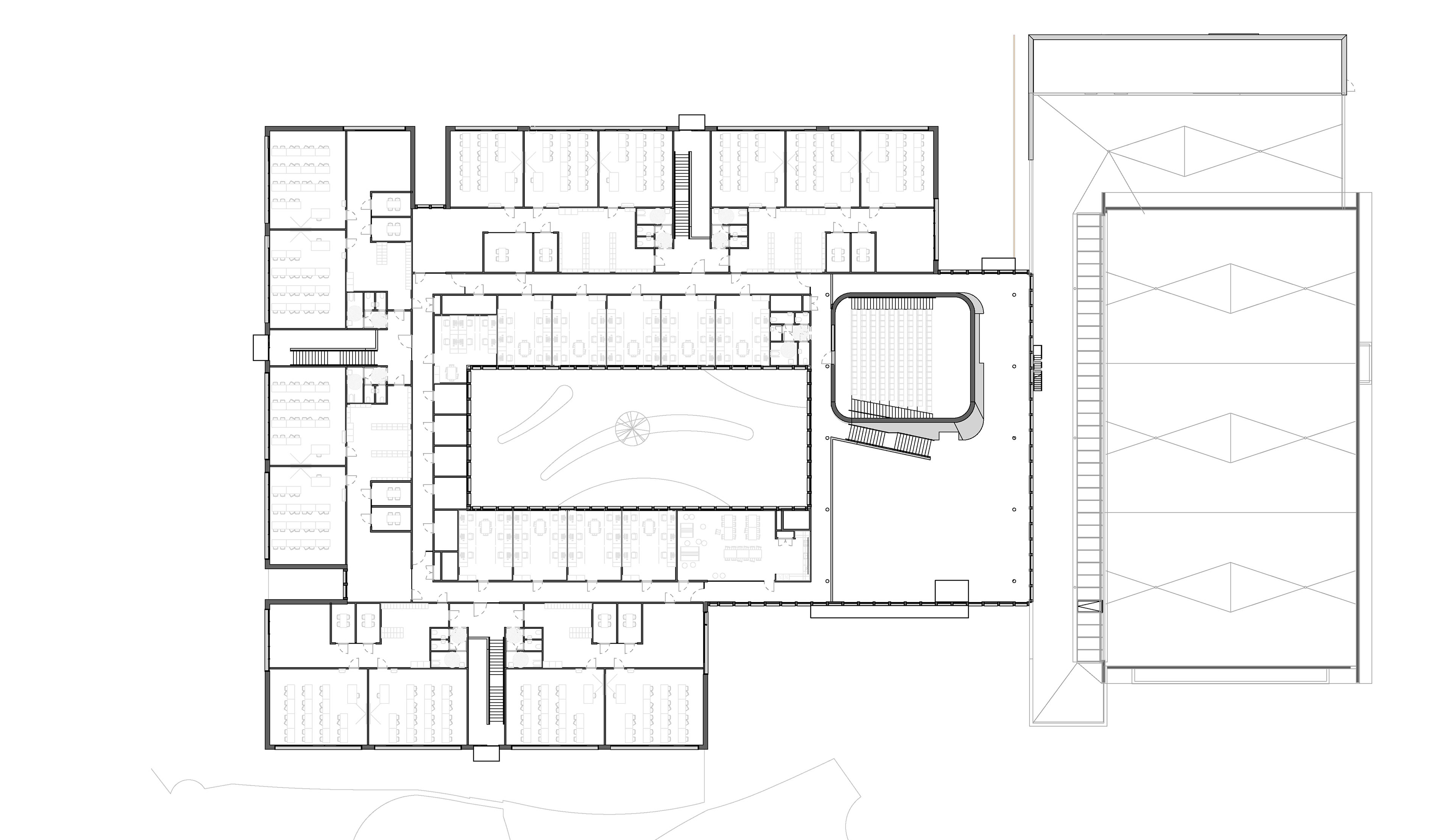
EIDET SKULE - FORPROSJEKT
Sted:
Ålesund
Gjennomføring:
2022
Areal:
7000 m2
Byggherre:
Ålesund kommunale eiendom KF
↑
Top