
Sted: Ålesund
Gjennomføring: 2008, 2014, 2018-
Areal: 700 m2
Byggherre: Ålesundsregionens Havnevesen
Kaihuset er bygget i 1892, og knytter seg i byplanen opp mot trehusbebyggelsen i Molovegen. Bygningen er oppført som en enkel lagerbygning, og ble bygget samtidig med utbyggingen av kaianlegget på Skansekaia, som startet i 1890 da Skanseholmen ble sprengt ned.
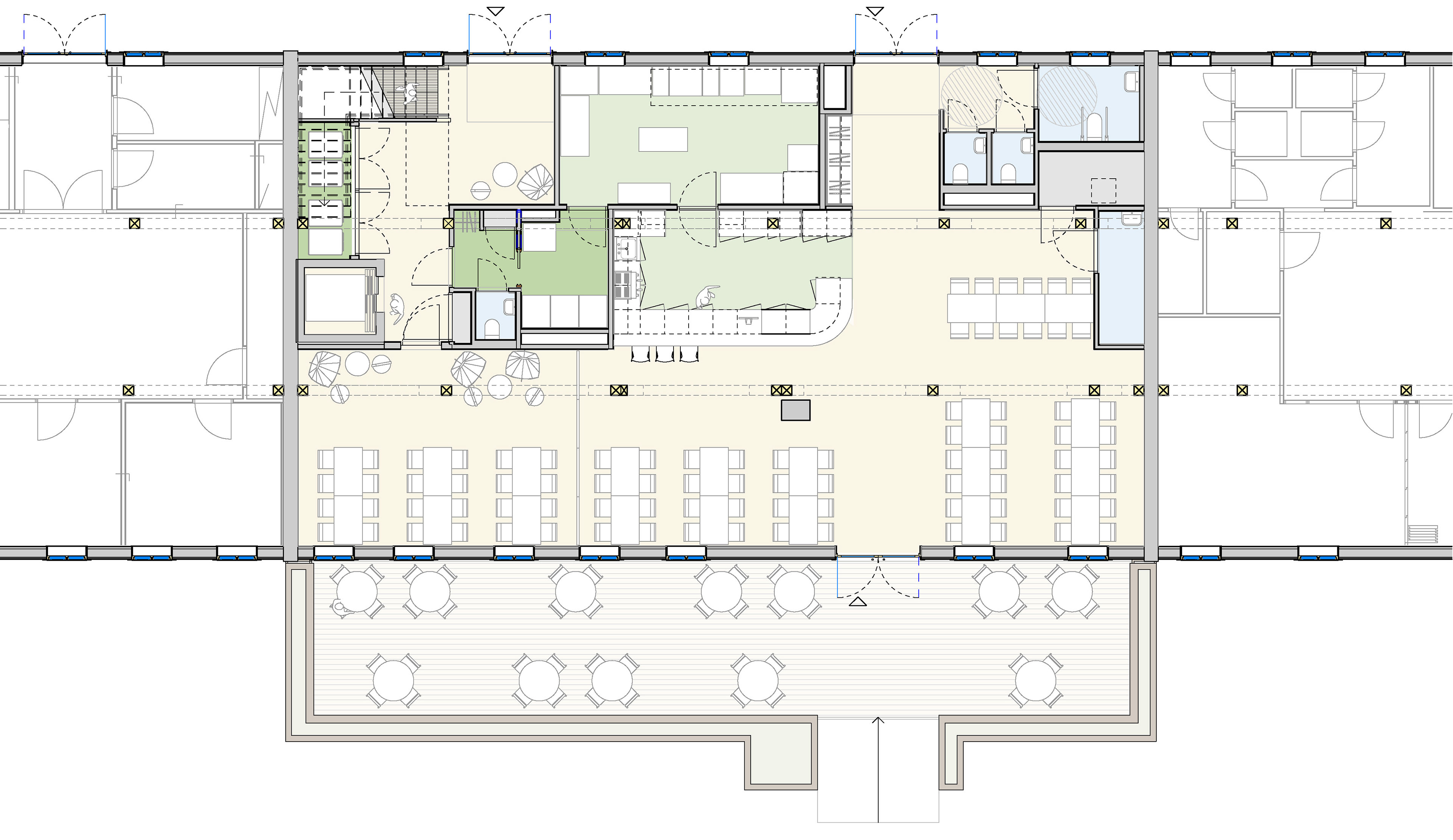
Huset har gjennom historien vært tilpasset skiftende funksjoner for havnas behov, og er i dag delvis benyttet som kontorlokaler for Ålesundregionens Havnevesen, og delvis som utleiearealer for kontorformål. Østseksjonen ble rehabilitert i 2008, og vestseksjonen i 2014. I skrivende stund er det også planer om rehabilitering av midtseksjonen, og etablering av et spisested på gateplan.
Bygningen er tilpasset til de opprinnelige tegningene. Innvendig er de bestående konstruksjonene intakte og en del av bygningens interiør. For å kunne gjøre prosjektet realiserbart, har det vært nødvendig å utnytte loftsetasjen gjennom innsetting av takvinduer for å skaffe dagslys til arbeidsplassene innenfor.






