Hjem
PROSJEKTER
NYHETER
OM OSS
MEDARBEIDERE
KONTAKT
#Bolig
#Skole
#Næring
#Reguleringsplan
#Offentlig
#Rehabilitering
#Konkurranse
Hjem
PROSJEKTER
NYHETER
OM OSS
MEDARBEIDERE
KONTAKT
#Bolig
#Skole
#Næring
#Reguleringsplan
#Offentlig
#Rehabilitering
#Konkurranse
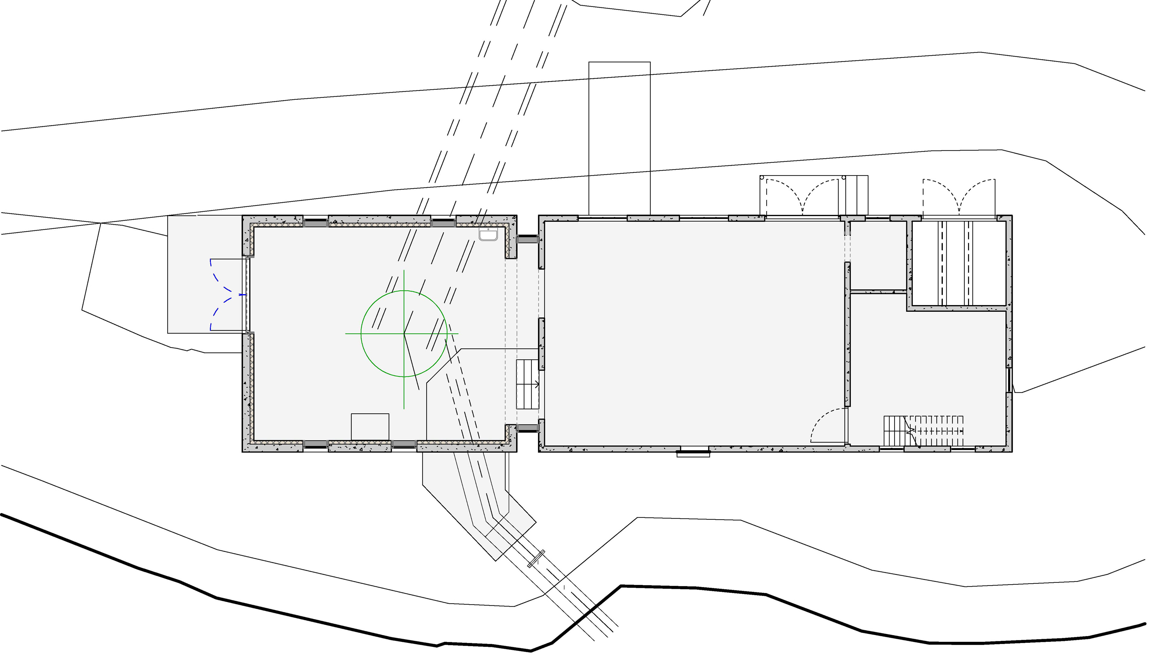
NESSET KRAFTVERK
Sted:
Nesset
Gjennomføring:
2024-
Areal:
151 m2
Byggherre:
Tussa Energi
↑
Top